Proposed Jurien Bay Motel Apartments Expansion (Closed)
Posted: 25/02/2021 Closing Date: 09/04/2021 04:00 PM
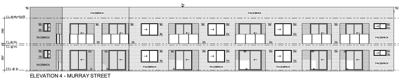
The Shire of Dandaragan has received a development application for the expansion of the Jurien Bay Motel Apartments at 3 (Lot 104) Murray Street, Jurien Bay. The expansion proposes the addition of 9x one-bedroom rooms, 6x two-bedroom rooms, 2x three-bedroom rooms, shared laundry facilities, and associated vehicle parking and landscaping.
Plans of the development can accessed from the following link: (attached to upload)
To comment on this development application, please submit to the Shire of Dandaragan in writing or email to council@dandaragan.wa.gov.au by 4pm Friday 9 April 2021.
